KBU 58, 250/5A; 1,5VA; 1%

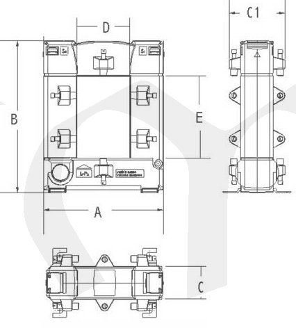
Transformátor KBU-58 najde hlavní využití při dodatečné montáži na kabel nebo pas, kdy není nutné jeho přerušení. Uchycení transformátoru se provádí buď pomocí upevňovacích patek, které jsou součástí dodávky nebo pomocí fixačních šroubů přímo na primární vodič nebo pas.
Měřící transformátory proudu KBU mají sekundární výstup řešen svorkami.

Obecné vlastnosti

  • Jmen. trvalý tepelný proud Icth: 1,2 x IN
  • Jmen. krátkodobý tepelný proud Ith: 60 x IN, 1 sec
  • Nadproudové číslo: FS5
  • Jmen. dynamický proud Idyn: 2,5 x Ith
  • Max. provozní napětí Um: 0.72 kV
  • Zkušební izolační napětí: 3 kV, Ueff, 50 Hz, 1 min.
  • Jmenovitý kmitočet: 50 Hz
  • Třída izolace: E
  • Stupeň krytí: IP 20
  • Rozsah pracovních teplot: -5°C až +50°C
  • Rozsah skladovacích teplot: -25°C až +70°C

Parametry výrobku:

Typ proudového transformátoru KBU 58
Primární proud trafa 250 A
Jedna pásovina 50x80 mm
Sekundární proud 5 A
Způsob přípoje, průměr nebo pás Rozebíratelné jádro mm
Třída přesnosti trafa 1 %
Výkon 1,5 VA
Nadproudové číslo 5
Kód výrobce 80061
Hmotnost trafa 0,6 kg
Odkazy Popis parametrů měřících transformátorů proudu

Nadproudové křivky chyb nízkonapěťových měřících transformátorů proudu a schéma zapojení

Ke stažení: KBU58_katalogovy_list.pdf
Trafa_EXIMUS_MBS.pdf
Spotreba_vedeni_k_trafu.pdf
Cena: 2432 Kč (bez DPH)
Cena: 2943 Kč včetně DPH 21 %
Do košíku

Id: 7106,   ID_Pohoda : E3718,