CLT 20, 40/1A; 5VA; 5P10 120%

Přístrojový transformátor proudu CLT 20 je určen pro měření a jištění ve vnitřních rozvodných zařízení nízkého napětí s nejvyšším napětím soustavy 0,72 kV.
Hodnota sekundárního proudu je 5 A nebo 1 A.
Transformátory CLT 20 mají krajní provozovací proud 100% IN, po dohodě se zákazníkem je možno dodat i jiné hodnoty např. 120% IN.
Aktivní části transformátorů CLT 20 jsou uloženy v plastových krabičkách z kvalitního plastu.
Použité izolační materiály splňují tepelnou třídu izolace E.
Transformátory CLT 20 jsou řešeny jako závitové.
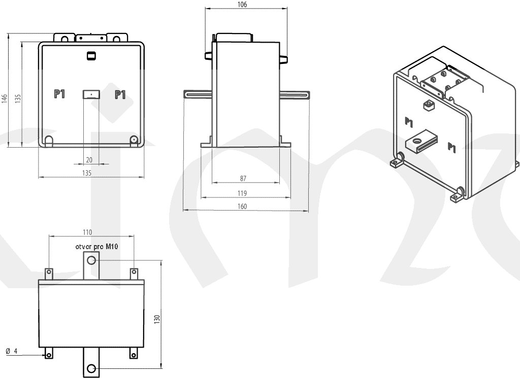
Pro připojení k primárním svorkám transformátoru se připojuje pomocí šroubů M10.
Sekundární svorky s kontaktními šrouby jsou umístěny v horní části transformátoru pod průhlednou krytkou, kterou je možné zaplombovat.
Pro připojení k sekundárním svorkám doporučujeme použít kabelová oka dle použitého průřezu lankového vodiče nebo je možné použít izolovaného kruhového drátu do maximálního průměru 2,5 mm.

POZOR!  PŘI PROVOZU TRANSFORMÁTORU CLT 20
JE NUTNO VYLOUČIT ROZPOJENÍ VÝVODŮ SEKUNDÁRNÍHO VINUTÍ.

Pokud během provozu odpadne nutnost používání transformátoru, musí být jeho sekundární vinutí spojeno nakrátko.
V rámci zákaznického servisu nabízíme zákazníkům možnost úředního cejchování transformátorů včetně vystavení všech následných protokolů.
Po dohodě je možné parametry upravit podle konkrétních požadavků zákazníka.


Nejvyšší napětí soustavy:  0,72 kV
Zkušební napětí střídavé:  3 kV
Jmenovitý primární proud, In 1 - 250 A
Jmenovitý sekundární proud:  5 A nebo 1 A
Jmenovitý krátkodobý tepelný proud, Ith 60 x In (max. 50 kA)
Jmenovitý dynamický proud, Idyn 2,5 x Ith
Jmenovitý kmitočet:  50Hz  (60Hz)
Teplotní třída izolace:  E
Provozní podmínky:  provozní teplota od -5 do +40°C,
odpovídá teplotní třídě -5/40 dle ČSN EN 61869-1
vnitřní prostory bez kondenzace vody
Norma: ČSN EN 61869-1, ČSN EN 61869-2, IEC EN61869-1, IEC EN61869-2, GOST 15150
Typové schválení:TCM212/17-5451

Parametry výrobku:

Typ proudového transformátoru CLT 20
Primární proud trafa 40 A
Sekundární proud 1 A
Způsob přípoje, průměr nebo pás Praporcové mm
Třída přesnosti trafa 5P %
Výkon 5 VA
Nadproudové číslo 10
Kód výrobce 305000016
Odkazy Popis parametrů měřících transformátorů proudu

Nadproudové křivky chyb nízkonapěťových měřících transformátorů proudu a schéma zapojení

Ke stažení: CLT20_katalog.pdf
Spotreba_vedeni_k_trafu.pdf
Cena: Na dotaz!
Do košíku

Id: 18833,