stříbrný povrch teploměru a červené dilky na stupnici
TCS 60S je tlakový teploměr určený k měření teploty v soustavách, kde místo snímání teploty není totožné s místem odečtu.
Teploměr je tvořen trubicí ve tvaru Archimedovy spirály, která se působením vnitřního přetlaku rozmotává a tím koná rotační pohyb.
Rotační pohyb přímo úměrný vnitřnímu přetlaku je přenesen na ručičku, která ukazuje na stupnici naměřenou hodnotu. Vnitřní přetlak úměrný teplotě se vyvozuje teplotní roztažností kapaliny v čidle, které je se spirálou spojeno kapilárou.
Montáž teploměru se provádí nasunutím hlavice teploměru do otvoru dle příslušného rozměrového náčrtu a umístěním teploměrového
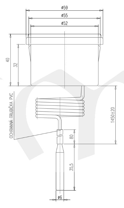
čidla do jímky. Těleso teploměru je možno umístit v libovolné poloze. K zamezení rozkmitání kapiláry během provozu je nutné upevnění minimálně v dalších dvou bodech přibližně rovnoměrně rozložených v délce kapiláry. Nejmenší povolený poloměr ohybu spojovací kapiláry
je 5 mm. V provozu nevyžaduje žádnou údržbu.
Rozsah stupnice: 0..+120°C
Měřící rozsah: +20..+100°C
Dělení stupnice: 2 K
Třída přesnosti 4
Rozměry čidla pr.6x35,5mm
čas. konstanta 15 s
Délka kapiláry 1450 mm
Min. pol. ohybu 5 mm
Volitelné příslušenství, Teploměrové jímky dle požadované délky, materiálu a závitu.
